What are the specific requirements of UL 1581 for vertical flame test?
UL 1581 is a standard published by Underwriters Laboratories that pertains to the testing of wires and cables, including the vertical flame test. The specific requirements for the vertical flame test are detailed in the standard, and it's essential to ensure compliance to guarantee the safety and reliability of the wires and cables.
The UL 1581 vertical flame test measures the ability of a wire or cable to resist the propagation of fire along its length. The test is conducted on a sample of the wire or cable, and it involves exposing the sample to a vertical flame to assess its flammability characteristics, including flame spread, duration of burning, and damage to the insulation or jacket.
Key specific requirements of UL 1581 for the vertical flame test include:
1. Sample Preparation:
- The sample for the vertical flame test should be prepared in accordance with the applicable requirements of UL 1581. This may include specific dimensions and construction of the sample to represent the intended use of the wire or cable.
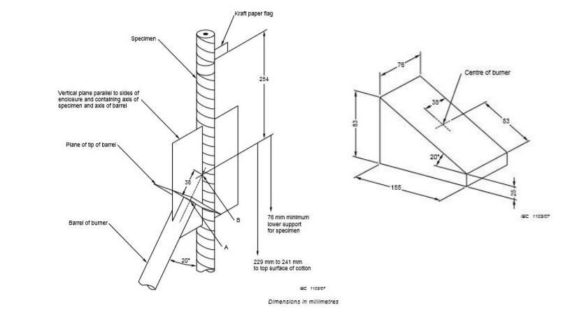
2. Test Apparatus:
- The test apparatus used for the vertical flame test should comply with the specifications outlined in UL 1581. This may include details about the flame source, mounting of the sample, and the measurement and control instrumentation.
3. Conditioning:
- Prior to the vertical flame test, the sample may be subjected to conditioning procedures to simulate the anticipated service environment. This could include exposure to elevated or reduced temperatures, humidity, or other factors as specified in the standard.
4. Test Procedure:
- The test procedure for the vertical flame test is described in detail in UL 1581 and includes specifics about the application of the flame, the duration of exposure, and any additional conditions such as the orientation of the sample relative to the flame.
5. Performance Criteria:
- UL 1581 establishes specific performance criteria that the sample must meet during the vertical flame test. This may include limits on flame spread length, duration of burning, and the extent of damage to the insulation or jacket.

6. Acceptance Criteria:
- The standard specifies the acceptance criteria that the sample must satisfy to be considered compliant with the vertical flame test. This could include criteria related to flame spread, self-extinguishment, and condition of the sample after the test.
7. Reporting:
- Upon completion of the vertical flame test, the standard may outline requirements for documenting and reporting the test results. This could include details such as the test conditions, observations during the test, and the compliance status of the sample.
It's important to note that UL 1581 is a comprehensive standard with additional requirements beyond the specifics of the vertical flame test. Compliance with all relevant sections of the standard is necessary to demonstrate the safety and performance of wires and cables.
In summary, the specific requirements of UL 1581 for the vertical flame test encompass sample preparation, test apparatus, conditioning, test procedure, performance criteria, acceptance criteria, and reporting. Adhering to these requirements is crucial in ensuring that wires and cables meet the necessary safety and flammability standards for their intended applications.
